12 Freestyle u Davle

Typové dřevostavby na klíč
Architekti
Užitná plocha
93 m2
Realizace
2017
Projektanti
Fotograf
Lina Németh
Realizační firma
Domesi s.r.o.

Kousek od Davle jsme v krásné zahradě postavili typovou dřevostavbu Freestyle, jejíž podobu jsme přizpůsobili pozemku a především životnímu stylu majitelů.

Na míru zahradě

Dům jsme umístili na dolní část pozemku, kde tvoří pomyslnou zástěnu od přístupové cesty, čímž zajišťuje soukromí v původní a doslova kouzelné zahradě. Je zarostlá množstvím kvetoucích keřů a ovocných i jehličnatých stromů, a nechybí zde příjemná zákoutí s posezením u ohniště, u jezírka s lekníny, nebo ve stínu stromů.

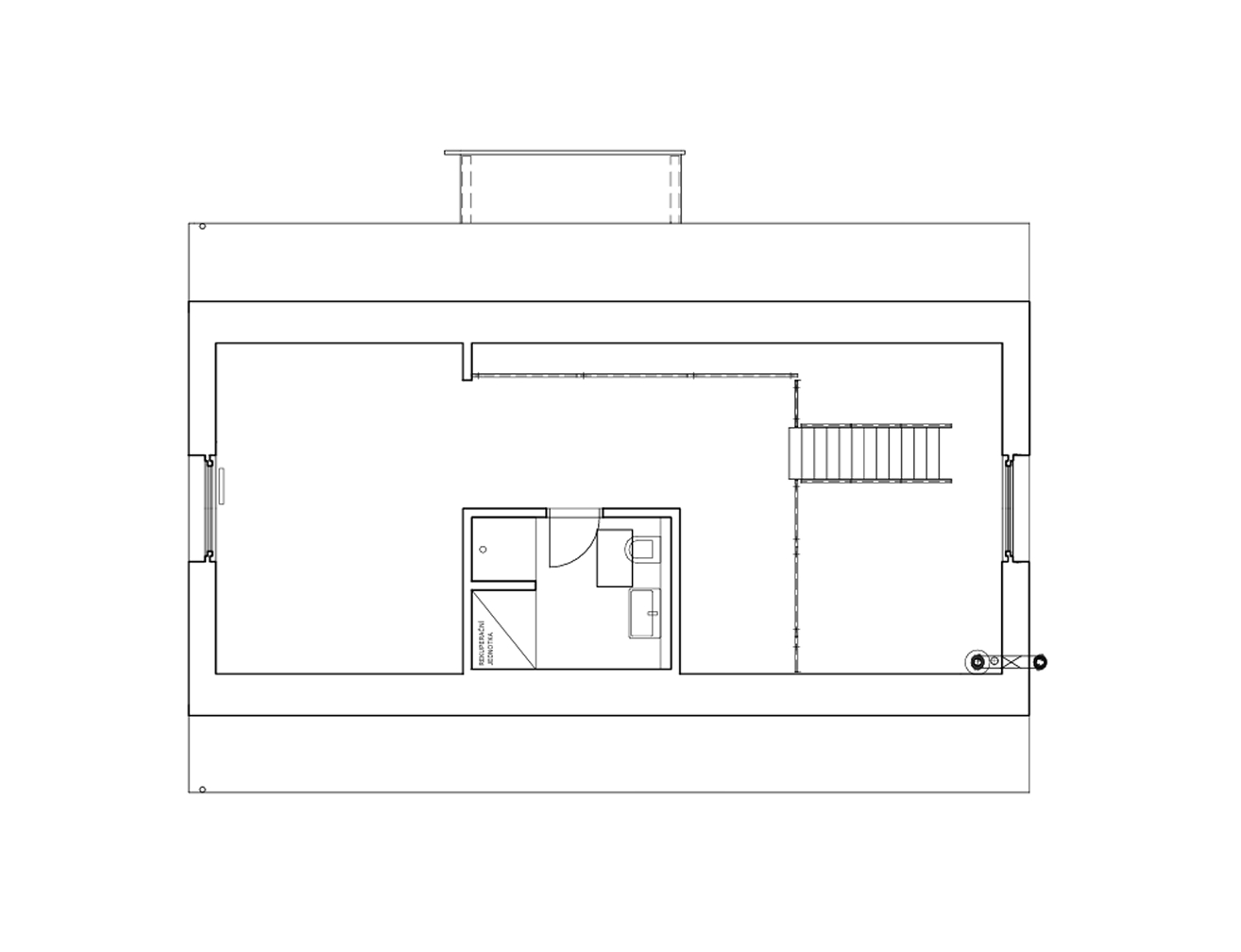
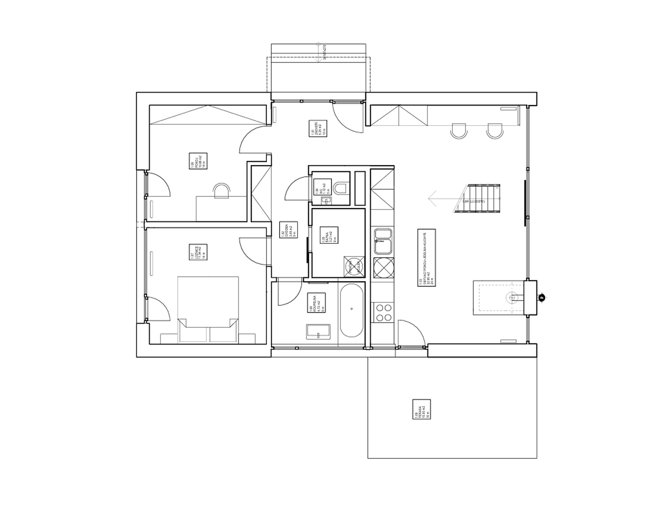
Úpravy standardu

Na první pohled má dům oproti standardní verzi Freestyle terasu umístěnou podél domu – směrem do zahrady. Ke úpravám návrhu došlo i ve vnitřní dispozici. V přízemí se vpravo od vchodu nachází dva samostatné pokoje – jeden slouží jako pracovna a druhý jako ložnice. Naproti je v rámci jádra domu umístěná samostatná toaleta, technická místnost, šatna a koupelna s podélným oknem směrujícím do zeleně. V hlavní obývací místnosti je velkorysá kuchyňská linka, v prostoru se nachází sedací souprava a jídelní stůl a na protější straně pracovní kout majitelky domu.

Stolečky různých velikostí a tvarů vyrobila majitelka domu z výřezů CLT desek – tedy z odpadu vzniklého při stavbě domu./
/
Horní patro domu je částečně otevřeným prostorem, který v nejzazší části slouží k meditacím, cvičení a případnému přespávání návštěv.
/
Koupelna má díky svému umístění podélné okno s výhledem do zeleně
Prosklená čelní část domu nabízí výhled do zeleně a místo televize slouží krmítko, umístěné na jabloni, kam se slétávají ptáci.
13
Další projekt

AB Partizánske

Posuň